在美國經營中餐廳,真正決定開業速度的,往往不是菜品,而是讓老闆們最頭疼的兩座大山:政府審批(Permit)是否順利 + 有限空間是否被極致利用。
很多餐廳在裝修時,最先考慮的是風格和傢俱,但在美國,餐廳設計其實是一項系統工程。不僅要好看,還要符合建築規範、消防要求、衞生標準和保證運營效率。
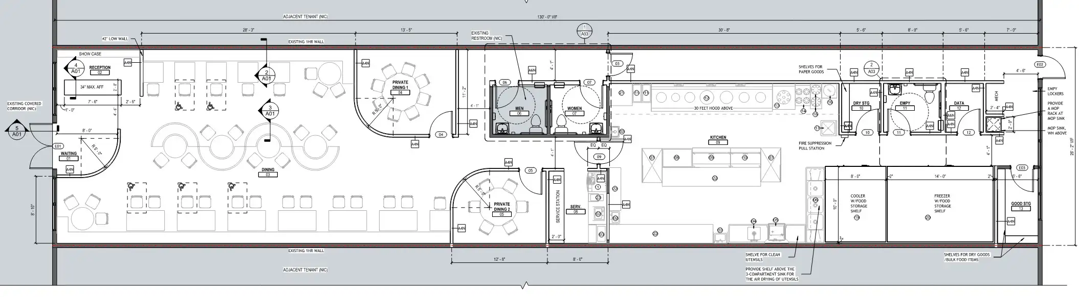
餐廳空間的內部設計,不是簡單的美學表達,而是一場關於規範、動線、設備、材料與時間線的系統協作。本文將以 iTalkBB 精英會員 愚建築 Yu Architecture 在 DMV 地區(華盛頓特區、馬里蘭、維州)設計的一個約 3,000 平方英尺餐廳為例,為您拆解商業裝修中的關鍵細節,教您如何在保證設計效果的同時,提高報批效率、減少返工風險。
目錄
1. 毫釐必爭:平面設計階段與Permit的關係
2. 餐廳高級感怎麼來?原木風餐廳為什麼越來越流行
3. 中國成本,美國規範——美國公司也能對接國內供應鏈
4. 從報批到落地:專業設計團隊如何幫餐廳少走彎路
總結

1. 毫釐必爭:平面設計階段與Permit的關係
在DMV地區,餐廳屬於高監管商業類型(Assembly + Restaurant Use)。餐廳設計的第一步不是選風格,而是先把空間條件理清楚。
1.1 哪些設計最佔空間?
在3000 尺以內的面積裏,最佔空間的通常是三部分:
● 殘疾人無障礙設施 (ADA): 洗手間必須留夠輪椅轉圈的空間
● 逃生通道: 走廊得夠寬,出口得夠多
● 後廚設備: 巨大的排煙罩和洗碗池
如果不在平面階段一次性考慮清楚,忽略動線、疏散距離或 ADA 要求,後期在報批階段極易被 Plan Check 要求修改返工。
1.2 小空間高效率:從可過審談設計——弧形牆不只是美學
小體量空間中,每一個inch都意義重大。3000 尺內的餐廳,多爭取出40–60 sqft,可能可以多出 1–2 張四人桌,這直接影響租金回報率。
因此, 愚建築 Yu Architecture 在設計這家餐廳時,中心採用了弧形牆設計。相比傳統的直角牆體,弧形牆的價值並不只是設計語言,而是坪效神器,能在小面積餐廳中展現三大功能:
● 減少“直角死角”帶來的視覺壓迫
● 優化顧客與服務員交叉動線
● 提升單位面積座位利用率


1.3 報批順利的關鍵:ADA + 消防雙線並行
Permit審批通常涉及建築部門(Building Department)、消防(Fire Marshal)、衞生局(Health Department)多個單位,最常被檢查的幾個點包括:
● 洗手間轉彎半徑是否夠60”
● 無障礙通道寬度是否達到36”
● 逃生出口數量和方向是否正確
在 3000 尺左右的餐廳裏,兩個ADA無障礙洗手間和兩個逃生出口是比較穩妥的配置。
但真正關鍵的不是“有沒有”,而是是否能夠在第一版設計圖裏就已符合規範。報批效率往往不是看誰遞交得快,而是看圖紙是否能一次通過。
愚建築Yu Architecture專業團隊(點擊諮詢),通常會在設計初期就同步計算:
● 最大可容納人數(Occupant Load)
● 最遠疏散距離(Egress Distance)
● 無障礙通道寬度
在畫第一筆圖時,愚建築Yu Architecture就會同步核算最大容納人數和逃生距離,省得圖紙送進政府辦公室被打了回來再改。
1.4 餐廳開業如何不延期?高效廚房布局是關鍵
很多人不知道,餐廳的延期開業80%與廚房佈局有關。和家庭廚房不同,商業廚房是餐廳生產線的一部分。設計餐廳廚房時,最合理的流線應為“收貨 → 儲存 → 備菜 → 烹飪 → 出餐 → 回收 → 清洗”,如果流程設計不順暢,很容易出現動線交叉、操作擁擠等問題。
美國衞生局通常會重點檢查生熟分區是否合理、三槽水池和洗手池的位置、冷藏設備容量、排煙系統以及地面防滑和排水等。
很多小餐廳為了多放設備,會把操作空間壓得很小,結果既影響效率,也可能在衞生檢查時被要求調整。因此在設計階段就和設備工程師一起規劃廚房,往往能減少很多後期問題。
愚建築 Yu Architecture 為餐廳設計的平面圖紙,在滿足各類規範的前提下,實現空間利用率最大化。
2. 高級感怎麼來?原木風餐廳為什麼越來越流行
在華人餐飲市場中,紅色與傳統中式元素已高度飽和,而年輕客羣更偏好現代、簡潔、自然感空間,因此越來越多餐廳開始選擇原木風或現代風格。但如果處理不好,原木風也很容易顯得普通廉價。
讓原木風變高級的關鍵在於三個方面:
● 材質比例
● 顏色對比
● 燈光層次


愚建築 Yu Architecture 原木風設計真實效果圖
2.1 不用全場用力,而是要打造“視覺記憶點”
小面積餐廳應只設一個主視覺區,不需要每個角落都設計得很複雜。更好的方式是集中做一個視覺重點,例如中央弧形卡座、特別設計的燈具、一面顏色突出的背景牆;這樣顧客一進門就能記住這個空間,也更容易形成拍照傳播。
愚建築Yu Architecture 就在餐廳中心設計了弧形卡座,並搭配球形燈具和局部深色點綴,讓空間既有層次感,又不會顯得雜亂。

2.2 決定餐廳高級感的來源:材質和燈光
原木風並不意味着所有地方都用木頭。通常建議木色控制在整體空間的40%–60%之間,其餘部分可以用金屬顏色、釉面磚等其他材料做對比。
燈光也非常重要,例如使用 2700K–3000K 的暖光,可以讓木色顯得更加柔和,而不會過於生硬。
適當的燈光和材質搭配,往往比複雜造型更能提升空間質感。靠牆卡座利用拱門元素與橙色釉面磚點綴,在暖色燈光下增加了空間的精緻度,可以讓原木色顯得柔和而非單調。

2.3 包廂空間的輕奢表達
這家餐廳安排了包廂空間,可以在整體原木風格的基礎上稍微做一些變化。
Yu Architecture設計了以大象灰為基調的包廂空間,搭配奢石台面與古銅色金屬點綴,在統一的原木框架下實現了輕奢轉型。

3. 中國成本,美國規範——美國公司也能對接國內供應鏈
不少餐廳業主會選擇從中國定製傢俱或整裝材料,畢竟價格真香,能節省不少成本,但如果不懂美國規範,這筆錢可能白花!
3.1 別讓海運來的傢俱變成廢品
美國消防員和衞生局(Health Department)會檢查這些:
● 防火等級 (Fire Rating): 軟包沙發、牆板是不是防火材料?
● 電器認證: 國內燈具如果沒過UL認證,有些地方可能不能安裝。
● 環保標準: 甲醛排放(VOC)是否超標。
如果材料不符合要求,運到美國後發現不能使用還是小問題,甚至會影響最終的營業許可。
3.2 專業團隊幫您全方位把關
愚建築Yu Architecture(點擊諮詢) 既懂國內供應鏈,也深諳美國審批邏輯,專業設計師能從各個角度幫忙把關:
● 風格與顏色是否匹配?由設計師直接對接國內生產商,能從千百種樣板中挑出最符合設計初衷的材質紋理與色值,杜絕“實物與效果圖不符”的尷尬。
● 尺寸把關零誤差!專業設計師對空間尺寸的掌控極其精確,確保海運而來的每件定製傢俱都能嚴絲合縫地嵌入預留位,避免尺寸偏差導致現場翻工,從而導致增加裝修成本。
● 一站式閉環: 從訂購、運輸到現場組裝,設計師全線監控材料參數,確保符合美國消防標準,讓老闆們真正放心當"甩手掌櫃"。

愚建築 Yu Architecture 全權負責與中國傢俱供應商對接
4. 從報批到落地:專業設計團隊如何幫餐廳少走彎路
餐廳審批涉及多個部門協同,流程複雜程度遠高於多數華人業主的預期。很多業主是在簽約後才發現店面的電力容量帶不動商用廚房、煤氣管線(Gas line)負荷不足,甚至空間原本的用途根本不準做餐飲。一旦等到開工才發現這些問題,改建成本將高得驚人。
因此,一個成熟的商業設計流程,必須在簽約前就介入評估:既有管線條件、樓板承重、層高是否滿足排煙等等。
4.1 專業設計團的跨州執行力
愚建築 (Yu Architecture) 的服務不僅深耕 DMV 地區,更延伸至德州 (Texas) 及紐約都會區。不同州的法規雖有差異,但審批邏輯高度結構化。成熟團隊的優勢在於:
- 精準識別:快速看破各州建築規範(Building Code)的細微差異。
- 熟門熟路:精通不同城市的規劃與區劃(Planning / Zoning)審批路徑。
- 提前預判:在設計階段就“掃雷”,預知消防與衞生局可能的卡點,而不是等施工時才補救。

愚建築Yu Architecture 的服務範圍不僅涵蓋 DMV 地區,同時覆蓋德州(Texas)以及輻射紐約都會區。不同州雖法規細節不同,但審批邏輯高度結構化,從德州到紐約,都能提前幫助業主做好風險預判,而不是等施工開始後才補救。這種“跨州執行能力”,並不是簡單的設計輸出,而是對美國商業建築規範體系的整體理解。
4.2 全專業協同配合
Yu Architecture擁有全方向的專業團隊,包括:
● 美國執照建築師(Licensed Architect)
● 機電工程師(MEP Engineer)
● 資深室內設計師(Interior Designer)
這種全專業整合的優勢非常明顯:當設計、報批與施工協調在同一個頻道時,部門間的溝通成本極低,開業效率自然顯著提升。
總結
“好看”是面子,“報批順暢、施工高效、後期運營穩定”才是底子。
在美國開店,與其把精力全部放在視覺風格上,不如在前期就把規範與流線推演清楚。設計階段多做一輪校核,往往能為後期節省數週時間與不必要的返工成本。




